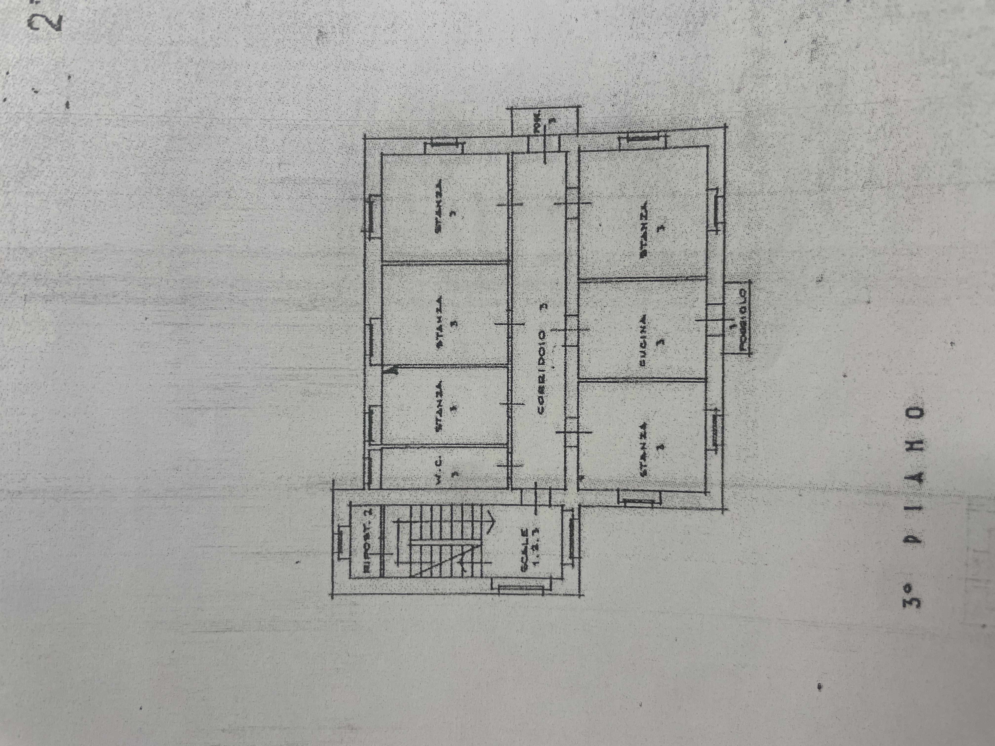
In una splendida posizione immersa nel verde, proponiamo in vendita un ampio appartamento di 145 mq commerciali situato al terzo piano di una palazzina tranquilla, con ottima esposizione su quattro lati. L’appartamento è termoautonomo, completamente arredato e rifinito con pavimenti in larice. Ideale sia come abitazione principale sia come casa vacanza, grazie alla vista panoramica sulle Pale di San Martino e alla posizione tranquilla, ma comoda a tutti i servizi.
L’immobile si compone di:
Ingresso
Ampio soggiorno
Cucina separata
Quattro camere da letto
Bagno finestrato ristrutturato di recente
Due poggioli con vista aperta sulle montagne
Soffitta spaziosa
Due cantine
Se desideri ricevere maggiori informazioni su questo immobile o fissare un appuntamento per una visita, compila il modulo sottostante. Ti contatteremo al più presto per fornirti tutti i dettagli necessari.
Confronta Strutture
ConfrontaInserisci l’indirizzo email con cui ti sei registrato e riceverai un link per reimpostare la password.
Questo sito utilizza cookie tecnici e di profilazione.
Puoi accettare, rifiutare o personalizzare i cookie premendo i pulsanti desiderati.
Chiudendo questa informativa continuerai senza accettare.
Impostazioni privacy
Questo sito utilizza i cookie per migliorare la tua esperienza di navigazione su questo sito.
Visualizza la Cookie Policy Visualizza l'Informativa Privacy
Google Analytics è un servizio di analisi web fornito da Google Ireland Limited (“Google”). Google utilizza i dati personali raccolti per tracciare ed esaminare l’uso di questo sito web, compilare report sulle sue attività e condividerli con gli altri servizi sviluppati da Google. Google può utilizzare i tuoi dati personali per contestualizzare e personalizzare gli annunci del proprio network pubblicitario. Questa integrazione di Google Analytics rende anonimo il tuo indirizzo IP. I dati inviati vengono collezionati per gli scopi di personalizzazione dell'esperienza e il tracciamento statistico. Trovi maggiori informazioni alla pagina "Ulteriori informazioni sulla modalità di trattamento delle informazioni personali da parte di Google".
Luogo del trattamento: Irlanda - Privacy Policy
Consensi aggiuntivi:
Google Tag Manager è un servizio di gestione dei tag fornito da Google Ireland Limited.I dati inviati vengono collezionati per gli scopi di personalizzazione dell'esperienza e il tracciamento statistico. Trovi maggiori informazioni alla pagina "Ulteriori informazioni sulla modalità di trattamento delle informazioni personali da parte di Google".
Luogo del trattamento: Irlanda - Privacy Policy
Google reCAPTCHA è un servizio di protezione dallo SPAM fornito da Google Ireland Limited.
L'utilizzo del sistema reCAPTCHA è soggetto alla privacy policy secondo termini di utilizzo di Google.
Luogo del trattamento: Irlanda - Privacy Policy
Trustindex è un servizio di visualizzazione di contenuti gestito da Trustindex Ltd che permette a questo sito web di integrare contenuti da questa piattaforma esterna all’interno delle proprie pagine.
Luogo del trattamento: Ungheria - Privacy Policy
Google Fonts è un servizio per visualizzare gli stili dei caratteri di scrittura gestito da Google Ireland Limited e serve ad integrare tali contenuti all’interno delle proprie pagine.
Luogo del trattamento: Irlanda - Privacy Policy
Google Maps è un servizio di visualizzazione di mappe gestito da Google Ireland Limited. Questo servizio serve ad integrare tali contenuti all’interno delle proprie pagine.
Luogo del trattamento: Irlanda - Privacy Policy
Gravatar è un servizio di visualizzazione di immagini gestito da Automattic Inc. che permette a Automattic Inc. di integrare tali contenuti all’interno delle proprie pagine.
Luogo del trattamento: Stati Uniti - Privacy Policy
Il monitoraggio per le conversioni di Google Ads è un servizio di statistiche fornito da Google Inc. che viene usato per inviare i dati delle azioni compiute all'interno di questo Sito web.
Luogo del trattamento: Irlanda - Privacy Policy